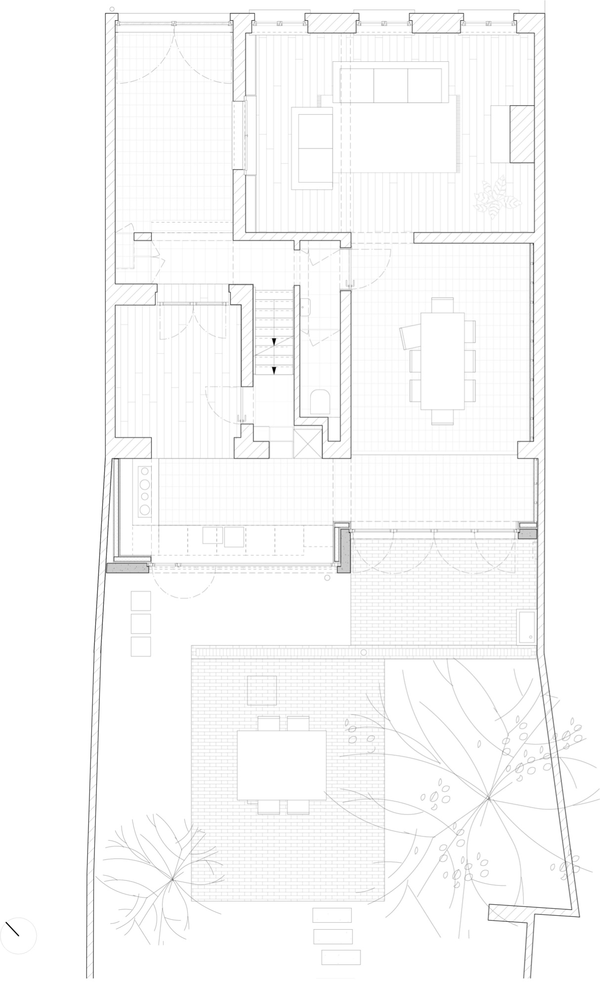
Stap-voor-stap verbouwing Koepoort
Programma: Stap voor stap verbouwing van een woning
Opdrachtgever: Privaat
Team: Philine Vanrafelghem
Samenwerking: Marleen Goethals
Fotografie: Dennis De Smet, Filip Dujardin (foto bibliotheek)
De Smet Vermeulen architecten werd opgericht in 1989 door Henk De Smet en Paul Vermeulen. Vandaag wordt het bureau geleid door Benjamin Eggermont, Philine Vanrafelghem en Paul Vermeulen.
Voor ons is architectuur niet specialistisch, maar generalistisch. Onze aandacht gaat naar het grotere geheel – architectuur is stedenbouw van onderop – en naar de langere termijn – bouwen moet duurzaam zijn.
In opdrachten voor het Stadsvernieuwingsfonds, sociale huisvestingsmaatschappijen en private ontwikkelaars hebben wij een grote expertise opgebouwd in stadsontwerp. De rode draad daarbij is een zorgzame omgang met bestaande situaties. Daar hoort vaak erfgoed bij, waar we met onbevangen blik naar kijken.
Realisme, kostenbewustzijn en bouwkundige degelijkheid zijn onze maatstaven. Werken met meerdere partijen impliceert luisterbereidheid, inclusief een open oor voor het maatschappelijke debat.
Ons werk haalde twee maal de Belgian Building Award en twee maal de Prijs Wivina Demeester (voorheen Prijs Bouwheer). Het Vlaams Architectuurinstituut wijdde twee monografische tentoonstellingen aan ons werk: “Hernemingen, verdichtingen, economie” in 1996 en “Find Myself a City to Live in” in 2017. In 2011 kreeg Paul Vermeulen de Vlaamse Cultuurprijs voor Architectuur. We namen twee keer deel aan de Internationale Architectuur Biënnale Rotterdam (2016 en 2018) en drie keer aan de Biënnale van Venetië (1991, 2016 en 2021). Naast vele artikels in de jaarboeken van het Vlaams Architectuurinstituut, in binnen-en buitenlandse bladen en e-zines, zijn twee monografiëen over ons verschenen, bij deSingel in 1996 en bij Quart Verlag in 2016.
For sure indifference is not a virtue – but neither is endlessly multiplying differences. We should over and again decide which differentiations are essential and which ones only try in vain to distinguish between things that are largely identical.
I have to continue until I know so much that I am free of what I know. I can only design to the extent that I am free of what I know.
Isn’t the art of architecture to draw abundance from scarce resources?
Examine what exists with a constructive gaze. Repeat it, confirm it, but from a new angle.
Team
Dries Coopman
Tim De Messemaeker
Aaron Derie
Benjamin Eggermont, zaakvoerder
Peter Geens
Joana Martins
Lisa Van Crombrugge, office manager
Philine Vanrafelghem, zaakvoerder
Paul Vermeulen, zaakvoerder
Jan Verstraete
Mona Watty
Medewerkers sinds 1990
Marleen Dilissen, Marleen Goethals, Bart Van Schuylenbergh, Axel Cayman, Tom Thys, Saskia Kloosterboer, Olivier Renard, Bieke Cattoor, Bart De Wilde, Diane Engels, Els Van Meerbeek, Karl Beelen, Jeroen Beerten, Bram Seghers, Nathalie Cruysweegs, Barbara Geens, Joost Raes, Petra Decouttere, Tine Van de Wiele, Nikolaj De Meulder, Eline Tavernier, Evelien Korte, Jana De Mulder, Katrien Vancroonenburg, Anabel Houtekier, Kristin Smets, Ruth Kennivé, Eva Capova, Bas Goethals, David Schelstraete, Duarte Miranda, Manoël Timmermans, Jorge Reis, Jantje Engels, Toon Vermeir, Fien Callewaert, Nicolas Deflandre
Stages en kortlopende medewerking sinds 1990
Daniele Ganz, Geert Pauwels, Isabelle Dierickx, Michael Ryckewaert, Tom Louwette, Inge Buysse, Wesley Aelbrecht, Elke Goossens, Patricia Lopes Simões, Wim Bruneel, Sara Feskens, Laurens Dekeyser, Roxane Le Grelle, Jona Moereels, Christelle Nga Mbida, Mattias Rutishauser, Orin Torati, Misty Liu, Ziou Gao, Tomi Akinyemi, Ben Rea, Loïc Tindemans
- 2023
- Tack exhibition, ETH Zürich
- Composite Presence, z33, Hasselt
- 2021
- Composite Presence, Biennale di Venezia, Belgisch paviljoen
- 2020
- Alternative Histories, Irish Architectural Archive, Dublin, Ierland
- 2019
- Alternative Histories, CIVA, Brussel
- Alternative Histories, Cork Street Galleries, London, Londen, Verenigd Koninkrijk
- 2018
- You are here, The Missing Link, Internationale Architectuur Biënnale Rotterdam, WTC, Brussel
- 2017
- solo: Find myself a City to Live in, Vlaams Architectuur Instituut, Antwerpen
- 2016
- Maatwerk/Massarbeit, Vai, Deutsches Architektur Museum, Frankfurt
- Bravoure, Biennale di Venezia, Belgisch paviljoen
- Utrecht Gezonde Stad, Internationale Architectuur Biënnale Rotterdam, Fenixloods, Rotterdam
- 2015
- Stad Buiten Stad, Vlaams Architectuur Instituut, Antwerpen
- Carrousel, De Vylder Vinck Taillieu, ETH Zürich
- 2011
- LABT collectie, Galerie Surplus, Gent
- 2010
- Kasbah: LABT, Design Biennale, Kortrijk
- 2009-10
- Best of. Provinciale architectuurprijzen. Leuven, Antwerpen, Gent, Ieper, Alsemberg, Hasselt
- 2000
- Parasites for Malmö, Danish Center for Architecture Gammel Dok, Kopenhagen, Galleri ROM, Oslo, The Architecture Foundation, London
- 1998
- Kortrijk 1990-2000: projecten voor een stad, centrum voor Architectuur en Design, Kortrijk
- 1996
- De rijkdom van de eenvoud/ L’éloge de la simplicité, Fondation pour l’Architecture, Brussel
- Nouvelle Architecture en Flandre, Arc en Rêve Centre d’Architecture, Bordeaux
- solo: Henk De Smet Paul Vermeulen Architecten, Kunstencentrum De Singel, Antwerpen
- 1991
- Architetti della Fiandra, Biennale di Venezia, Belgisch paviljoen
- Jonge Architecten in Vlaanderen, Nederlands Architectuurinstituut, Rotterdam
- 1990-91
- Jonge Architecten in Vlaanderen, Stichting Architectuur Museum, Museum voor Sierkunst, Gent
- 2023.06.21
- Material Chariot. (object, recorded video – TACK final conference 19 – 21 June 2023, ETH Zürich)
- 2023.04.18
- Quatre avis sur les transformations (ULB La Cambre Horta, Bruxelles)
- 2022.12.08
- Kwaliteitsbemiddeling in architectuur (Architectuurwijzer, Vai, Z33, Hasselt)
- 2022.04.21
- Tondelier Krono (Archipel, Woonvraagstukken, Gent)
- 2022.03.24
- Tentative Tectonics (Symposium Bonding Brick, UGent)
- 2021.11.17
- Left Bank Antwerp: in search of common ground. A plea for micro-urbanism. (Conference Histories of Urban Design, Zürich)
- 2021.09.28
- Cornice Statement and debate (ETH Zürich, GTA, Werk bauen + wohnen, Zürich)
- 2020.10.27
- 7 questions (Studio Jan De Vylder, ETH Zürich, online)
- 2020.06.18
- De Smet Vermeulen architecten (TACK Network, online)
- 2020.06.02
- AA Three positions (Architectural Association, London, online)
- 2020.03.10
- Tacit Knowledge (TACK Network, Nieuwe Instituut Rotterdam)
- 2019.11.13
- Nieuw Gent (Architectuurwijzer, C-mine Genk)
- 2019.06.20
- Une église, un potentiel quel projet (CAUE, Calvados)
- 2019.04.11
- An architecture that anybody can do (Symposium Refrenzen, Leibniz Universität, Hannover)
- 2019.03.27
- Een kerk voor een dorp, een buurt, een stad (KU Leuven Gent)
- 2018.11.18
- Autism and architecture (Monnikenheide, Zoersel)
- 2018.10.11
- More density, better cities (IABR You are here, WTC Brussel)
- 2018.10.11
- WTC IABR workshop betaalbaar wonen
- 2018.10.04
- Le devenir des églises (CAUE, Nancy)
- 2018.06.19
- Find myself a city to live in (RWTH Aachen)
- 2018.04.24
- Slachthuissite (TU Eindhoven, Felixpakhuis, Antwerpen)
- 2018.04.23
- We are the streets (Msc Stedenbouw en Ruimtelijke Planning, VUB)
- 2018.04.23
- Find myself a city to live in (Avril en ville Liège)
- 2018.04.17
- Economie (Ateliers Nocturnes ULB La Cambre Horta, Bruxelles)
- 2018.03.21
- Nieuw Gent presentatie (Stadsacademie, Ugent)
- 2018.03.12
- Order and Contingency (The Trouble with Classicism, Studio Kersten Geers, EPFL Lausanne)
- 2018.02.21
- Bouwen aan wijken (Klimaatlaboratorium, Vakgroep Architectuur en Stedenbouw, Ugent)
- 2017.12.19
- Taking Sides (studio De Vylder, ETH Zürich)
- 2017.11.12
- Prijsuitreiking Gouden pand (Dement, Oostende)
- 2017.09.14
- We are the streets (Festival van de Architectuur, symposium Linkeroever, Antwerpen)
- 2017.03.22
- Fear of Music (Existenz Soirée écoutée, KU Leuven)
- 2016.12.07
- Ugent Designing urbanization (Vakgroep Architectuur en Stedenbouw, Ugent)
- 2016.12.01
- Brugge solidaire en gezonde stad (AWB, Brugge)
- 2016.10.13
- Brugge solidaire en gezonde stad (Archipel en Dienst Ruimtelijke Ordening, Brugge)
- 2016.10.05
- Oostends Erfgoed (LUCA, Grote Post Oostende)
- 2016.08.26
- Against Utopia (Encounters in optimism: Utopia in a Finite World, La Biennale di Venezia)
- 2016.02.11
- Brick, an exacting material: reaction (Academie Bouwkunst Amsterdam)
- 2015.11.20
- Taking Sides (Symposium Editing the Context, Fakultät Architektur, Bergische Universitât Wuppertal)
- 2015.10.30
- Presence of the void (TU Delft)
- 2014.03.30
- Conventional Wisdom (Session Convention & invention, Vakgroep Architectuur en Stedenbouw, Ugent)
- 2014.03.18
- Que dois-je savoir pour réussir à créer (Ateliers Nocturnes ULB La Cambre Horta, Bruxelles)
- 2014.02.03
- Edificio Copan (The Cass Brazil Programme and Unit 3, London)
- 2013.12.19
- De Smet Vermeulen architecten (Academia di Architettura, Mendrisio)
- 2013.11.08
- (a)tectoniek (Academie van Bouwkunst, Rotterdam)
- 2013.03.01
- University and the city (Arcam, Amsterdam)
- 2012.11.13
- Architecture is bottom up urbanism (MAUSP, KU Leuven)
- 2012.02.23
- Brick Tectonics (Capita Selecta, An exacting material, Academy of Architecture Amsterdam)
- 2012.01.10
- Een Metselaar die Latijn kent (provinciale hogeschool Hasselt)
- 2011.12.13
- Architectuur van de zorg, architectuur van de stad (Symposium Ruimte voor Zorg, Vlaams Bouwmester en Vipa, Brussel)
- 2011.11.29
- Catalyst Interventions in Urban Transformations (Ugent)
- 2011.04.28
- Catalyst Interventions in Urban Transformations (Capita Selecta lecture, TUDelft)
- 2011.01.27
- Nieuw Zurenborg (TU Eindhoven)
- 2009.09.25
- Architecture is bottom up urbanism (TUDelft)
- 2009.06.09
- Actieplan Bouwkundig Erfgoed Oostende (Portico, Gent)
- 2009.03.23
- Duurzaamisme? (De Loeiende Koe, Gent)
- 2008.11.27
- De Smet Vermeulen architecten (Stad en Architectuur, Leuven)
- 2008.10.21
- Oase: Context (Henry Van de Velde Instituut, Antwerpen)
- 2007.11.29
- Bibliotheken. De bib van Beveren (Landmark Libraries, Antwerpen)
- 2007.10.08
- Adres Tafereel Tectoniek (SAUL, Limerick)
- 2007.04.20
- Nederhem Halle (Stedelijke Fenomenen, Architectenhuis Hasselt)
- 2007.04.13
- Adres Tafereel Tectoniek (TU Delft)
- 2006.12.07
- Adres Tafereel Tectoniek (Archipel, Aalst VMM)
- 2006.11.14
- Nederhem Halle (Winvorm, Brugge)
Onderzoekspapers
- 2023
- Leeke Reinders, Paul Vermeulen, Reading sites, building stories.
peer-reviewed, selected abstract for VAI – Uhasselt international colloquium As Found: Experiments in Preservation, 5 – 7 september 2023 - Material Chariot.
Object and video. Invited contribution, Session Shapers, Tacit Knowledge (TACK) final conference 19 – 21 June 2023, ETH Zürich - 2021
- Left Bank Antwerp: in search of common ground. A plea for micro-urbanism.
peer-reviewed paper, selected for the ETHZ – TUDelft conference “Histories of Urban Design. Global trajectories, local realities.” 15 – 17 September 2021, ETH Zürich) - 1988
- André Loeckx, Noël Naert, Paul Vermeulen, L’Habitat Moderne à Alger (1925-1975), Cité La Concorde (1956, arch. Daure et Béri).
Centre Post Graduat Etablissements Humains, Département Architecture, Urbanisme et Aménagement du Territoire, KULeuven, Leuven, en collaboration avec Bureau d’Etudes de Rénovation et Préservation des Quartiers Anciens, MATUC, Alger – Unpublished Research Paper (Unesco funded) - André Loeckx, Noël Naert, Paul Vermeulen, L’Habitat Moderne à Alger (1925-1975), Aéro-Habitat (1955, arch. Miquel, Bourlier et Ferrer-Laloë).
Centre Post Graduat Etablissements Humains, Département Architecture, Urbanisme et Aménagement du Territoire, KULeuven, Leuven, en collaboration avec Bureau d’Etudes de Rénovation et Préservation des Quartiers Anciens, MATUC, Alger – Unpublished Research Paper (Unesco funded) - André Loeckx, Paul Vermeulen, L’Habitat Moderne à Alger (1925-1975), Etude et Evaluation de Cités et Quartiers du Patrimoine Moderne en vue d’une Rénovation Urgente. Deuxième Partie : 15 Cités Modernes à Alger, Présentation d’un Echantillon.
Centre Post Graduat Etablissements Humains, Département Architecture, Urbanisme et Aménagement du Territoire, KULeuven, Leuven, en collaboration avec Bureau d’Etudes de Rénovation et Préservation des Quartiers Anciens, MATUC, Alger – Unpublished Research Paper (Unesco funded)
Boeken
- 2016
- De Smet Vermeulen architecten, Irénée Scalbert, Hans van der Heijden, De Aedibus International 12. De Smet Vermeulen architecten. Quart Verlag, Luzern
- 2007
- Maarten Delbeke, Christophe Van Gerrewey, Paul Vermeulen, Moderne Tijden. Teksten over architectuur. Vlees en Beton 72, s.l.,
- 1996
- Henk De Smet, Paul Vermeulen, Resumptions, Compressions, Economy. De Singel, Antwerpen
Artikels in tijdschriften (selectie)
- 2023
- Ingenieurskunst en theater. (over Open Oproep Technicum 4, Gent) in: A+ (nog te verschijnen)
- In tweede orde. (over cohousing Jean, Gent, door ectv) In: A+30, Affordable Housing.
- 2022
- Paul Vermeulen, Elsbeth Ronner, Aurélie Hachez, Between City and Palace. The Palais des Beaux Arts. In : Oase 111, Journal for Architecture. Staging the Museum
- 2021
- Louis Roelandt’s Public Architecture in the Subdivided City. In: Oase journal 108. Ups & Downs. Reception histories in Architecture.
- 2019
- Een menigte meubels. (over Lina Bo Bardi’s meubilair) In: De Witte Raaf
Silent Transference. (on Gosia Olchowska). Unpublished text for exhibtion at Flemish Architecture Institue - De inzet van het Waagstuk (over Charlotte Van den Broeck, Waagstukken). In: De Reactor, Knack.
- Geen tabula rasa voor het museum. (over Bijmans van Beuningen) In NRC, Rotterdamse editie
- 2018
- Stolzer Zeuge. Sanierung der Wohnüberbauung Kleiburg in Amsterdam von NL Architects und XVW architectuur. In: Werk, bauen+wohnen 1/2 -2018
- 2017
- Bart Decroos, Teksten zijn plaatsen van tegenspraak.
- In: A+267 Dis-cours (interview met Paul Vermeulen)
- 2016
- Hand overspeeld. In : A+ 259 (over de Open Oproep voor renovatie van het stedelijk zwembad van Paul Felix’ en Jan Tanghe, Oostende.)
- Een man in een bibliotheek. In memoriam Geert Bekaert. In: ArchiNed, 19.9.2016
- Raum gewinnen durch Vorfabrikation. Studentenwohnhaus in Eindhoven von Office Winhov und Office Haratori. In: Werk, bauen+wohnen 3-2017
- Marleen Goethals, Paul Vermeulen, Social space under construction: Urban renewal in Broek, Vilvoorde. In : Oase 96, Social Poetics
- 2015
- Paul Vermeulen, Philippe Viérin, Twaalf aanbevelingen. Herbestemming van kerken. In : A+ 257
- Steden worden te snel doodverklaard. In : A+255
- Paul Vermeulen, Diego Beja Inglez de Souza, Babel Brasileira. In : AA Files 70.
(on Oscar Niemeyer’s COPAN building, Sao Paulo) - 2014
- Het huis van Max Havelaar (tekening). In: Christophe Van Gerrewey (red.), 50 fictieve gebouwen, DW B 159/5 special edition 3
- Brick by brick. In : Mark Magazine 49, April May 2014 (on House Rampelken and House Tichel, Gent by De Vylder Vinck Taillieu)
- Arnaud Tandt, « Architectuur is bottom up urbanism ». In : NAV news, nr. 72 (interview met Henk De Smet en Paul Vermeulen)
- 2013
- Analoge Architectuur uit Nederland. In : A+ 244 (over Biq en Winhov)
- Schatten des Zweifels. Das FRAC Dünkirchen von Lacaton & Vassal. In : Werk bauen Wohnen 2-2013
- 2012
- Picknick bei der Marmorkirche. Ein Neubau von Tony Fretton Architects in Kopenhagen. In : Werk bauen Wohnen 2-2013
After the Avant-Garde. In : Oase journal 87. Alan Colquhoun. Architect, Historian, Critic. - Dankwoord. In : A+ 233
- 2011
- Wildes Denken. Die Architektur von De Vylder Vinck Taillieu. In : Werk bauen Wohnen 7/8-2011
- Energie door Compressie. In : A+228 (on C-mine Genk by 51N4E)
- 2010
- Kleine Geschiedenis, Lange Duur. In : De Architect, november 2010 (over Lakerlopen, Eindhoven van Biq)
- De machine als stad. In : A+ 222 (over Office KGDVS, Kortrijk Xpo)
- 2009
- Inside the magic circle. In : Oase journal 79 The Architecture of James Stirling. Non-dogmatic Accumulation of Formal Knowledge.
- Een beeld van de Polder. In : A+220 (over De Boerekreek in Sint-Jan-in-Eremo by Coussée en Goris)
- 2008
- Domestic Containers. In : Oase 76 Context/Specificity (on Korteknie Stuhlmacher Architects, De Kamers, Amersfoort)
- 2007
- De Vinex en het Ongeduld. In : Nai Bulletin n°2, 2007, Rotterdam.
- 2006
- Tongue in cheek. Brick House door Caruso St John. In : A+198
- 2002
- Countryside in the Nevelstad. In : Oase 60, Urbanism out of town.
- 2000
- Cultural centres. A Journey through the Nebular City. In : Archis 10-2000
- 1999
- See, think, forget. In : Archis 9/1999
- 1998
- Henk De Smet, Paul Vermeulen, Character. In : Oase 49/50, Convention
- 1997
- Building as an instrument of deceleration. Hans Kollhoff’s exploration of the tectonic.
- In : Archis 10-1997
- 1995
- Magnet and Arena. Euralille horizontal : superblocks by Nouvel and Koolhaas. In : Archis 11-1995
- 1990
- Kunstwerken voor het collectief geheugen : Greisch’s bruggen over de Maas en het Albertkanaal. In : Archis 7-1990
Articles in books
- 2021
- Moratorium creates conversation space. In : Bovenbouw Architectuur (cur.), Composite Presence. Flanders Architecture Institute, Antwerp
- 2020
- The Cellar and the Garden. Notes on the work of Juliaan Lampens.
- In : Juliaan Lampens 1950-1991. De Singel, Antwerpen
- Antwerp, your next cruise stop (1990). In: Peter Swinnen, Anne Judong, Luc Deleu & T.O.P. Office. Future plans 1970-2020. Flanders Architecture Institute, Antwerp
- 2019
- Stone and air. Nolli Excavated. Portcullis House and Westminster Underground Station. In: Adam Caruso, Helen Thomas (eds.), Hopkins in the City. gta Verlag, Zürich
- Metropolitan vernacular: OMA’s Byzantium in Amsterdam. Clad in Tonalities of Light. Both in: Christophe Van Gerrewey (ed.), OMA Rem Koolhaas. A Critical Reader. Birkhäuser, Basel.
- 2018
- Architecture for one and all. In: Patrick Van Caeckenbergh et al., “Patrick van Caeckenbergh: Welkom”, Museum voor Schone Kunsten Gent
- 2017
- Une place pour chaque chose et chaque chose à sa place
In: Gestalte (Katrien Daemers en Jessika L’Ecluse), “Collect & Show.” Gent, Design Museum Gent - 2016
- Discoveries. In : Caroline Voet et al (ed.), Autonomous Architecture in Flanders. Leuven University Press, Leuven (on Marc Dubois)
- 2014
- Open books. Ana Torfs’ Cinoc.
In: NN, Art by Commission 2006-2013,Team Vlaams Bouwmeester, Brussel - 2012
- Doorzichtige dingen
In: NN, “Bouwmeester Rapport 2010-2011.”, Brussel, Team Vlaams Bouwmeester - 2011
- The untamed Mind. The architecture of De Vylder Vinck Taillieu. In : Architecten De Vylder Vinck Taillieu, 1 boek 2, MER – De Slngel, Gent-Antwerpen
- 2010
- Against Alienation.
In : Wirz, H. (ed.) De Aedibus International. 5. Tony Fretton Architects, London. Quart Verlag, Luzern - 2007
- Opvordering voor een Groepsportret. In : Veronique Patteeuw (ed.), Paul Van Aerschot, ontwerper, bouwer, didacticus. Universitaire Pers Leuven, Leuven
- 2004
- « Het gaat ons om de situatie ». Een interview met 51N4E.
In : Andreas Ruby (ed.), 51N4E Space Producers. Nai Publishers, Rotterdam - 2003
- Vakantie. In : Michel Uytterhoeven (red.), Pigment. Tendensen in het Vlaamse Podiumlandschap. Ludion & Vlaams Theater Instituut, Brussel (on B-architecten, Beursschouwburg and BSBbis, Brussels)
- 2002
- A conversation with Adam Caruso and Peter St John.
In : Caruso St John, Knitting Weaving wrapping Pressing. Architekturgalerie Luzern, Birkhäuser - 2000
- Food for Thought : ideas for the Mont des Arts. In : Bruno De Meulder, Karina Van Herck (ed.), Vacant City. Brussels’ Mont des Arts reconsidered. NAi Publishers, Rotterdam.
- Lemma’s Geert Bekaert. In : Hilde Heynen et al (red.), Dat is Architectuur. Sleutelteksten uit de Twintigste Eeuw. 010, Rotterdam
- 1998
- Gescheurd Weefsel. In : Bruno De Meulder et al. (ed.), Een Stad in beweging. Drie jaar architectuurverkenningen in de Brusselse kanaalzone. Studio Open stad, Centrum voor Architectuur en Design, Brussel-Kortrijk.
- Oude gebouwen, een hedendaags project.
In : NN, “Monumenten in zeven Levens”, Brussel, Koning Boudewijnstichting - 1993
- Clad in Tonalities of Light. In : Ruud Brouwers (ed.), Architecture in the Netherlands. Yearbook 1992-1993. Nai, Rotterdam (on Kunsthal Rotterdam by OMA)
- Deze en gene zijde van de muur.
In : M.José Van Hee, ontwerpen 1977-1993. De Singel, Antwerpen - Bouwen in België. De stille generatie.
In: Heynen, H., (red.), Wonen tussen gemeenplaats en poëzie – Opstellen over Stad en Architectuur. 010, Rotterdam. - Architectuurkritiek. In: Heynen, H., (red.), Wonen tussen gemeenplaats en poëzie – Opstellen over Stad en Architectuur. 010, Rotterdam.
- 1991
- The enlightened Prince of Suburbia.
In : Willem Jan Neutelings architect. Rotterdam-Maaskant Foundation, 010 Publishers, Rotterdam - The Cellar and the Garden. Notes on the work of Juliaan Lampens.
In : Juliaan Lampens 1950-1991. De Singel, Antwerpen - Notes on the work of Eugeen Liebaut. In : Eugeen Liebaut. De Singel, Antwerpen
- 2025
- Pieter T’Jonck, Hoe nieuw wordt het nieuwe S.M.A.K.? In : A+311
- 2024
- Christophe Van Gerrewey, Something Completely Different. Architecture in Belgium. Mit.
- Promenades dans la België. In : Casabella, Augustus 2024
- Christophe Van Gerrewey, De Smet Vermeulen, Harten Troef, Gent. Horizontaal samenleven. In : A+309
- Olivier Meystre, Die Muttersprache der Architektur. In : Bauwelt, November 2024
- Koen Van Synghel, Met dank aan woordspel en ramen tot op de grond: voormalige kerk wordt hart voor de stad. In : De Standaard, 6 december 2024
- Carlo Menon, Een redactionele werkwijze. In: Sofie De Caigny (ed.), Architectuurboek Vlaanderen N° 16. Antwoorden in verantwoordelijkheid. Vlaams Architectuur instituut, Antwerpen
- Herbestemming Heilig Hartkerk, Gent. In: Sofie De Caigny (ed.), Architectuurboek Vlaanderen N° 16. Antwoorden in verantwoordelijkheid. Vlaams Architectuur instituut, Antwerpen
- 2023
- Marius Grootveld (ed.), Rotterdam Ripresa – Future fragments for the neoliberal city. Architectura & Natura and Lemon Press, Amsterdam, Antwerpen, Gent
- 2022
- Seven Questions. In: Studio Jan De Vylder (ed.), Seven Questions. Ruby Press, Berlin
- 2021
- Alice Paris, Metal Living. In: Accattone 7
- Paul Vermeulen, Intergenerationeel Wonen Linkeroever (IGLO). In: Architecture Foundation’s YouTube channel
- De Smet Vermeulen, Schwelle zum Himmel, Wohnblock mit Sporthalle in Gent. In: Werk, bauen + wohnen: Gesims 9/2021
- Florian Heilmeyer, Reviving the street: Improvising a postwar social housing area in Antwerp. In: Florian Heilmeyer (ed.), Celebrating Public Architecture. Buildings from the Open Call in Flanders 2000-2021, Jovis Verlag, Berlin
- Hilde Heynen et al., Architectuurkwaliteit vandaag. KVAB Standpunten 74, Koninklijke Vlaamse Academie van België voor Wetenschappen en Kunsten, Brussel.
- 2020
- Drawing Matter Extracts, Where to Begin? Part I
- Michiel De Cleene, Groepswoningen en sporthal Krono, Gent. In: Sofie De Caigny (ed.), Architectuurboek Vlaanderen N° 14. Wanneer attitudes vorm krijgen. Vlaams Architectuur instituut, Antwerpen
- Belgacom Tower. In: Christoph Grafe, Tim Rieniets, Umbaukultur. The Architecture of Altering. Verlag Ketler, Dortmund
- 2019
- Jantje Engels, Marius Grootveld (ed.), Alternative Histories. Drawing Matter, Architecture Foundation, CIVA
- 2018
- Pripravila Lucie Simeckova, Maagdentoren Rehabilitation and Reconstruction. In: Beton Technologie Konstruckce Sanace, 3/2018
- De Smet Vermeulen, Sint-Medarduskerk Wijtschate. De kerk wordt een deel van de publieke dorpsruimte. In: Niek De Roo (red.), De deuren gaan open. Een toekomst voor de parochiekerken in Vlaanderen. Politeia, Brussel
- Bart Tritsmans, Architectuur en de verbeelding van het landschap. In: Sofie De Caigny (ed.), Architectuurboek Vlaanderen N° 13. Dit is een mosterdfabriek. Vlaams Architectuur instituut, Antwerpen
- 2017
- Pieter T’Jonck, Tentoonstelling Find myself a city to live in : zelfbewust, precies, zelfzeker. In : De Morgen, 13 februari 2017
- Geert Sels, Weg met de saaie Steden. In : De Standaard, 28 februari 2017
- Koen Van Synghel, Vlaamse banaliteit wordt schatkamer van poëzie. In : De Standaard, 28 februari 2017
- Guy Châtel, Op zoek naar een gepaste stad. Expo De Smet Vermeulen architecten. In : A+265
- Joep Gosen, Gent : Oude Dokken en Tondelier. In : A+265
- Haike Apelt, De realiteit van de architectuur is buiten. In : ArchiNed online, 31 mei 2017
- Jonas Bruyneel, Architectuur is verrassend democratisch. In : Selectief, De Morgen, juni 2017
- De Smet Vermeulen architecten, Restoration and Completion of the Maagdentoren in Zichem. In : ERA21, #06 2017, Brno
- Jos Segaert, Maagdentoren Zichem in ere hersteld. In: Info_Steel 49, 2017
- NN., Maagdentoren Zichem Belgium. In: Chris Van Uffelen, Rough Past meets New Design. Braun Publishing AG, Berlin.
- Johan Faes, Bob Van Reeth, eeuwig Bouwmeester. “Stadsontwikkeling is te belangrijk om over te laten aan de politiek.” In: DS Weekblad, 9 december 2017
- 2016
- Hugh Strange, Maagdentoren Zichem. In : Building Design, January 2016, London
- Axel Sowa, Schafherde zwischen Riesen. Das « Linke Ufer » als städtebauliches Experimentierfeld. In : Werk, bauen + wohnen 3/2016
- Johan Faes, Mijn koppen van Maalbeek. In : De Standaard, DS Weekblad 28 maart 2016
- Marleen Goethals, Paul Vermeulen, Social space under construction: Urban renewal in Broek, Vilvoorde. In : Oase 96, Social Poetics
- Christof Grafe, Jan De Vylder (ed.), Bravoure Scarcity Beauty. Vlaams Architectuur Instituut, Antwerpen.
- De Smet Vermeulen architecten, Irénée Scalbert, Hans van der Heijden, De Aedibus International 12. De Smet Vermeulen architecten. Quart Verlag, Luzern
- NN, Welcome in the Future. Virserums Konsthall, Virserum
- Jantje Engels, Marius Grootveld (ed.) Building upon Building. NAI010 Publishers, Rotterdam
- De Smet Vermeulen architecten i.s.m. Studio Roma, Restoration Maagdentoren, Zichem. In : Christoph Grafe (ed.), Flanders Architectural Review N°12. Tailored Architecture. Vlaams architectuur instituut, Antwerpen
- Koen Van Synghel, Memento Mori. In : Christoph Grafe (ed.), Flanders Architectural Review N°12, ibid.
- NN, Flanders Environmental Agency Offices. In : Sofie De Caigny (ed.), Maatwerk/Made to Measure : Concept and craft in Architecture from Flanders and The Netherlands. Vlaams Architectuur instituut, Deutsches Architekturmuseum.
- De Smet Vermeulen architecten, A Mixed Urban Form. Linker Oever Intergenerational Project (IGLO°. In : a+t 48. Complex buildings.
- Javier Mozas, Mixers : the Complexity of Everyday Life. In : a+t 48 (ibid.)
- 2015
- Geert Sels, Een voorbeeld voor bouwend Vlaanderen. In : De Standaard, 28 februari 2015.
- Sonja Vanblaere et al., M&L Monumenten & Landschappen, extra nummer : Maagdentoren
- Agnes Mus, Villa’s in de stad. In : De Standaard, 4-5 april 2015
- De Smet Vermeulen, House in Burst. In : Archdaily, 26 June 2015
- Paul Vermeulen, Steden worden te snel doodverklaard. In : A+255
- Paul Vermeulen, Philippe Viérin, Twaalf aanbevelingen. Herbestemming van kerken. In : A+ 257
- 2014
- Henk Engel, Renewal of the urban renewal. In : Roberto Cavallo et.al. (ed.), New Urban Configurations. IOS Press, Amsterdam
- Harm Tilman, Werken in de bestaande stad. In : De Architect, februari 2014
- David Keuning, No place like home. In : Mark Magazine 49, April May 2014
- Arnaud Tandt, « Architectuur is bottom up urbanism ». In : NAV news, nr. 72
- Christophe Van Gerrewey, Architectuur België. 25 jaar in 75 projecten. Lannoo, Tielt
- De Smet Vermeulen, An intergenerational project for Antwerp’s Linkeroever district. In : Overholland 14/15. Vantilt, Nijmegen
- Paul Vermeulen, Open books. Ana Torfs’ Cinoc. In : Art by Commission 2006-2013, Kunstcel Vlaams Bouwmeester, Brussel
- Katrien Embrechts, Esther Jacobs, The in-between city : a new design task. In : Architectural Review Flanders N°11. Vlaams architectuur instituut, Antwerpen
- Alyn Griffiths, Garden annex sits on the edge of an orchard. In : Dezeen magazine, 6 december 2014
- 2013
- De Smet Vermeulen, Strategische projecten: een kans voor Havenwijk in Leiden. In : Henk Engel, Endry van Velzen, Olof van de Wal, Vernieuwing van de stadsvernieuwing. Pleidooi voor ontwerpkracht. Trancityxvaliz, Almere
- Gideon Boie, Architectural Assymmetries. In : Is there Anti-Neoliberal Architecture ? Ed. Ana Jeinic en Anselm Wagner, 104. Berlijn Jovis
- 2012
- Paul Vermeulen, Dankwoord. In : A+ 233
- Audrey Contesse, De Smet Vermeulen architecten. In : A+ 233
- André Loeckx, Els Vervloesem, Architecture for Urban Renewal. In : Architectural Review Flanders N°10. Vlaams architectuur instituut, Antwerpen
- Dirk Somers, Commonplace and classicism. In : Architectural Review Flanders N°10, ibid.
- Maarten Delbeke, The façade in the city. In : Architectural Review Flanders N°10, ibid.
- Bert Verbeke, Wijkgezondheidscentrum De Brugse Poort: een gebouw in een park. In: Achitectura.be 29 November 2012
- 2011
- Sofie De Caigny, De blik scherpgesteld. In : A+ 228
- Audrey Contesse, Besirks-Gesundheitszentrum. In : Werk, bauen + wohnen 7-8/2011
- Christophe Van Gerrewey, Eindelijk succes ? Architectuur in Vlaanderen Anno 2011. In : Ons Erfdeel, Augustus 2011
- Elien Haentjens, Schrijvende architect krijgt Cultuurprijs. In : Knack Weekend, nr. 41/2011
- 2010
- Hans Ibelings, Architecture and conventions. Designing mute objects of expression. In : Hans Ibelings, Kirsten Hannema, (ed.) New European Architecture 09 10. A10 & SUN, Amsterdam, 2009
- Frits Palmboom, Drawing the Ground: Landscape Urbanism Today: The Work of Palmbout Urban Landscapes. Birkhäuser Verlag AG, Basel/Berlin
- Maureen Heyns, Bescheiden blikvanger. In : A+ 221
- Christophe Van Gerrewey, De schande van de architectuur. In : A+ 222
- 2009
- Maarten Van Acker, Bruggen bouwen. In : A+ 218
- Sofie De Caigny, Postlofts Brussel. In : Karina Van Herck, Bruno De Meulder (red.), Wonen in Meervoud. Groepswoningbouw in Vlaanderen 2000-2010. SUN, Amsterdam
- Jens Aerts, Halle Nederhem. A Vision ! And what now? In : André Loeckx (red.), Framing Urban Renewal in Flanders. SUN, Amsterdam
- Rob Cuyvers, The city is growing in New Zurenborg. In : André Loeckx (red.), Framing Urban Renewal in Flanders, ibid.
- Hans Ibelings, Designing for the Public. Flemish Government Architect 1999-2009. SUN, Amsterdam
- 2008
- Raf Snoeckx, Atelierwoning Apostelhuizen. In : Jaarboek Architectuur Vlaanderen 2006-2007, Brussel
- NN, De Standaard architectuurbibliotheek. 1000 jaar architectuur in België. Deel 2. Nieuwe eenvoud en hightech. Lannoo, Tielt
- NN, Arts Flanders 08. Compilation box. Flemish Architecture Institute, Antwerpen
- Hans van der Heijden, Architectuur in de Kapotte Stad. Thoth, Bussum
- Dirk Somers, Etiquette. In : Oase 76 Context/Specificity
- 2007
- Christophe Van Gerrewey, Zwart en vuil. Kantoor Rendac. In : A+ 207
- 2006
- Andreas K. Vetter, Moderne Giebelhäuser, Callwey Verlag, Munchen
- Caroline Goossens, Kantoorgebouw Vlaamse Milieumaatschappij. In : Jaarboek Architectuur Vlaanderen 2004-2005, Brussel
- Lieven Sioen, Bouwen met baksteen mag weer. In : De Standaard Magazine, 4/11/2006
- Dieter Van den Storm, Werken in hedendaagse architectuur. Licht, lucht & ruimte. In : De Standaard Magazine, 18/11/2006
- Hans van der Heijden, Kleur volgt functie. Voorpost in Wespelaar. In : De Architect, December 2006
- 2005
- De Smet Vermeulen, Office Building for the « Vlaamse MilieuMaatschappij ». In : NN, Belgium New Architecture 3. Prisme Editions, Brussel
- 2004
- NN, Guide d’Architecture de la Métropole Lilloise. L’Agence Lille Métropole, Lille
- Geert Bekaert, Zeldzaam evenwicht. VMM Aalst. In : A+ 188
- Hans van der Heijden, Zelfverzekerde eigentijdsheid. Kantoorgebouw Vlaamse Milieumaatschappij in Aalst. In : De Architect, Juni 2004
- 2003
- Anne Van Loo (red.), Repertorium van de Architectuur in België 1830-2000, Mercatorfonds, Antwerpen,
- 2002
- Michael Ryckewaert, Collectieve woningbouw in Vlaanderen. In : Jaarboek Architectuur Vlaanderen 2000-2001, Brussel
- André Loeckx, Stedelijkheid, stedenbouw en stadsarchitectuur. De inzet van een pilootproject. In : Marcel Smets (red.), Tussen stad en spoor. Project ‘Stationsomgeving Leuven’. Ludion, s.l.
- Paul Vermeulen, Countryside in the Nevelstad. In : Oase 60, Urbanism out of town.
- 2001
- Mechthild Stuhlmacher, Rien Korteknie, The City of Small Things. Stichting Parasite Foundation, Rotterdam
- De Smet Vermeulen, Villa Braeckman-Staels, Sint-Martens-Latem. In : a+t 17.2001 Memory (II) Memoria
- Frederika Spindler, A time of change. In : NN, Den Stora Skalan. Statens Konstråd, Stockholm, s.d.
- 2000
- Hans Ibelings, Francis Strauven, Zeitgenössische Architekten in den Niederlanden und in Flandern. Stichting Ons Erfdeel, Rekkem
- Arthur Wortmann, Two houses by De Smet Vermeulen and Wim Cuyvers. In : Archis 10/2000
- Dominique Pieters, De heraanleg van het station van Leuven. In : A+ 164
- 1999
- Irénée Scalbert, Invention or convention ? Oase Conference, Delft 29.1.99 (unpublished)
- Paul Vermeulen, See, think, forget. In : Archis 9/1999
- Harm Tilman, Stedenbouw in de non-stad. Vlaanderen worstelt met ruimtelijke ordening. In : De Architect, December 1999
- Catharina Gabrielsson, Flamländsk Arkitektur, en nostalgisk betraktelse. In : Mama Magasin För Modern Arkitektur, nummer 24, 1999
- 1998
- Kelly Shannon, Redesigning the Belgian Dream. Social housing in Belgium. In : Archis 8/1998
- Steven Jacobs, Urban Renewal and Social Housing. In : Jaarboek Architectuur Vlaanderen 1996-1997, Brussel
- Henk De Smet, Paul Vermeulen, Character. In : Oase 49/50, Convention
- Anton Graf, Einfamilienhäuser aus Backstein. Callwey Verlag, München
- Marc Dubois, Liesbeth Melis, De compacte woning op prijs gesteld. Stichting Kunstboek, Brugge
- 1997
- NN, Stadsvernieuwing, Sint-Denijsstraat Zwevegemstraat Kortrijk. Uitbreiding Landbouwinstituut, Heverlee. In : Pierre Loze, Vlaanderen Nieuwe Architectuur. Prisme Editions, Brussel, 1997
- 1996
- Emmanuel Doutriaux, Reisindrukken. In : Jaarboek Architectuur Vlaanderen 1994-1995, Brussel
- Henk De Smet, Paul Vermeulen, Woning De Smet-Claus. In : Jaarboek Architectuur Vlaanderen 1994-1995, Brussel
- Henk De Smet, Paul Vermeulen, Woning Martina. In : Jaarboek Architectuur Vlaanderen 1994-1995, Brussel
- Geert Bekaert, Hedendaagse architectuur in België. Lannoo, Tielt
- Koen Van Synghel, In defiance of architecture. The De Smet-Claus residence. In : Archis 4/1996
- Peter van Assche, Einfamilienhaus De Smet-Claus in Aalst. In : Bauwelt, November 1996
- Henk De Smet, Paul Vermeulen, Resumptions, Compressions, Economy. De Singel, Antwerpen
- 1994
- Henk De Smet, Paul Vermeulen, Uitbreiding van een woning, Deinze. In : Jaarboek Architectuur Vlaanderen 1990-1993, Brussel
- André Loeckx, Architectuur en stedelijk wonen in Vlaanderen. In : Jaarboek Architectuur Vlaanderen 1990-1993, Brussel
- Emmanuel Doutriaux, Flandre. La nouvelle génération. De Smet et Vermeulen. In : L’Architecture d’Aujourd’hui n° 292
- Patrick Goditiabois, Wedstrijd de Hollainkazerne te Gent, Een wedstrijd voor sociale huisvesting. In : A+ 127
- 1993
- Marcel Smets, Huisvestingsproject voor Hollainkazerne in Gent. In : Archis 5/1993
- Marc Dubois, Belgio. Architettura, gli ultimi vent’anni. Electa, Milano
- Paul Vermeulen, Bouwen in België. De stille generatie. In : Hilde Heynen (red.), Wonen tussen gemeenplaats en poëzie. Uitgeverij 010, Rotterdam
- 1991
- Geert Bekaert, Jonge architecten in Vlaanderen. In : Archis, 1/1991
- André Loeckx, Prijsvragen voor stadsranden in Gent en Kortrijk. In : Archis, 11/1991
APOSTELHUIZEN 9
B-9000 GENT
info@hdspv.be
+32 (0)9 329 42 52
BTW BE 0438 984 188
De Smet Vermeulen architecten is ingeschreven bij de Orde van Architecten, Raad Oost-Vlaanderen, met stamnummer B100356
Volg ons op instagram
Stage aanvragen en portfolio’s ontvangen we graag digitaal: info@hdspv.be
Examine what exists with a constructive gaze. Repeat it, confirm it, but from a new angle.